Детский сад № 333 (Москва)
| Детский сад № 333 | |
|---|---|
![]() Северо-восточный фасад | |
| 55°48′17″ с. ш. 37°27′59″ в. д. | |
| Тип | детский сад и памятник архитектуры |
| Страна | |
| Город | Москва, ул. Маршала Василевского, д. 11, кор. 6 |
| Тип здания | Детский сад |
| Архитектурный стиль | конструктивистская архитектура |
| Дата основания | 1930-е |
| Строительство | 1935 |
| Статус |
|
Детский сад № 333 (Детский сад со слониками) — детский сад, расположенный в Москве в районе Щукино Северо-Западного административного округа. Он был построен в середине 1930-х годов[1] в составе комплекса военного городка, и в ряде современных публикаций называется старейшим детским садом Москвы[2]. Во дворе детского сада расположен плескательный бассейн с четырьмя скульптурами слонов. С 2012 года детский сад закрыт[1]. В 2019 году детский сад был включён в список объектов культурного наследия регионального значения[3].
История
.jpg)

В 1930-х годах неподалёку от усадьбы Покровское-Стрешнево был построен военный городок для командного состава РККА. В его составе имелся ряд жилых и общественных зданий, в том числе и детский сад[4], построенный в 1935 году[5]. После войны холодные веранды для дневного сна были перестроены[6][5].
Благодаря устроенному в детском саду плескательному бассейну, дети старших групп, помимо ежедневного купания и закаливания, также обучались плаванию[7]. В летний период также практиковалась еда на открытых террасах, сон при открытых окнах прогулки и игры в лесопарке, мытьё ног прохладной водой перед сном[8].
Летом в 1954 и 1955 годах в бассейне детского сада проводились экспериментальные занятия плаванием. Основными целями эксперимента были: разработка методики обучения плаванию, исследование изменений в физическом развитии детей в результате обучения, изучение влияния закаливания на здоровье детей. В 1958 году по результатам эксперимента Т. И. Осокина написала диссертацию «Проблема формирования навыков плавания у детей дошкольного возраста и пути её решения в детском саду» на соискание учёной степени кандидата педагогических наук[8].
До 2010 года детский сад находился в ведении Министерства обороны Российской Федерации. В декабре 2011 года он был передан из собственности Министерства обороны в собственность Москвы, на баланс Департамента образования[9]. Закрыт в мае 2012 года по причине неудовлетворительного технического состояния и был предназначен к сносу. Однако многие градозащитники выступили за сохранение здания, и снос был приостановлен[1][10]. В августе 2016 года Мосгорнаследие отнесло детский сад № 333 к перечню выявленных памятников[9]. В феврале 2019 года здание было внесено в реестр объектов культурного наследия регионального значения[3].
В 2025 году пустующее здание выставили на торги, их победителем стала компания «Фривэй». Согласно условиям торгов, победитель должен будет провести реставрационные работы[11].
Архитектура и планировка
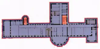
Детский сад построен по индивидуальному проекту. Здание асимметрично в плане. Оно представляет собой прямоугольник, вытянутый с северо-запада на юго-восток. К основному объёму примыкают две экседры. Одна из них, расположенная с южной стороны, определяет главный вход в здание. Другая экседра меньшего размера с лестницей внутри находится на северо-западной стороне. К основному прямоугольнику примыкают и два квадратный объёма: один напротив большой экседры, второй — с торца восточной стены. С северной стороны имеются выступы, в которых размещались мойки и туалеты[4]. В торцах устроены не отапливаемые террасы для дневного сна на свежем воздухе[6].
В архитектуре здания сочетается конструктивизм и сталинская неоклассика[12]. Для конструктивизма характерны полукруглый ризалит на фасаде с большими квадратными окнами, а также асимметричная планировка здания с просторными помещениями. При этом в оформлении фасадов здания использованы декоративные детали, свойственные сталинской архитектуре: пилястры, замковые камни, украшенные листом тропического растения аканта, а также ложные балконы с балясинами и профилированные карнизы[3].
Изначально детский сад был рассчитан на 120 мест. Помимо кухни, столовой, гардеробной, хозяйственных помещений, комнат отдыха, в нём имелись актовый, музыкальный и спортивный залы[3].
Детский сад занимает достаточно большую территорию прямоугольной в плане формы, окружённую сквозной оградой. Со стороны главного входа — въездные ворота и калитка на кирпичных столбах. На территории находятся несколько перестроенных беседок[6][3].
Бассейн

Отличительной особенностью детского сада является летний плескательный бассейн. Он имеет ограждение из балясин гротескной формы. Около ступеней бассейна установлены четыре крупные фигуры слонов[6][3]. Слоны были выкрашены в розовый цвет, поэтому в народе детский сад называли «родиной розовых слонов»[13][14].
Размеры ванны бассейна составляют 11,4 м в ширину и 3,2 м в длину. Площадь поверхности воды — 36,48 м². Со стороны длинных стенок бассейна имеются ступени, ведущие в воду. Торцевые стенки полукруглой формы. Дно наклонное. В глубокой и мелкой части бассейна глубина различается на 10 см. В зависимости от налитой в бассейн воды его глубина в глубокой части составляет 40—55 см, в мелкой — 30—45. Искусственного подогрева бассейн не имел, вода нагревалась от солнца[8].
План первого этажа
План второго этажа
Примечания
- 1 2 3 Василий Колотилов. Рождаемость убивает конструктивизм. «Московские новости» (29 ноября 2012). Дата обращения: 13 июля 2015. Архивировано 13 июля 2015 года.
- ↑ Старейший детский сад Москвы будет снесен. 360tv.ru (26 марта 2015). Дата обращения: 13 июля 2015. Архивировано 13 июля 2015 года.
- 1 2 3 4 5 6 Здание детского сада со слониками признали памятником архитектуры. mos.ru (27 февраля 2019). Дата обращения: 24 июля 2021. Архивировано 24 июля 2021 года.
- 1 2 Кудрявцева Т. П. Акт государственной историко-культурной экспертизы о включении в единый государственный реестр объектов культурного наследия (памятников истории и культуры) народов Российской Федерации заявленного объекта культурного наследия «Детский сад, 1936 г.» и об определении его историко-культурной значимости по адресу: ул. Маршала Василевского, д. 11, корп. 6. 14 ноября 2014.
- 1 2 Новый детсад в Покровском-Стрешневе // Архитектурная газета. — 1935. — № 62.
- 1 2 3 4 Крымова И. В. Акт государственной историко-культурной экспертизы выявленного объекта культурного наследия «Детский сад со скульптурами «слоников», 1930-е гг.» по адресу: г. Москва, ул. Маршала Василевского, дом 11, корп. 6. Архивная копия от 28 июля 2021 на Wayback Machine 15 марта 2017.
- ↑ Бутович Н. А. Нам скажут спасибо : [арх. 24 июня 2024] // Советский спорт. — 1958. — № 162 (11 июля).
- 1 2 3 Осокина Т. И. Проблема формирования навыков плавания у детей дошкольного возраста и пути ее решения в детском саду : диссертация ... кандидата педагогических наук. — М., 1958. — С. 50—52, 65.
- 1 2 Детский сад № 333 (“Садик со слонами”). Красная книга Архнадзора: электронный каталог объектов недвижимого культурного наследия Москвы, находящихся под угрозой. Архнадзор. Дата обращения: 24 июля 2021. Архивировано 22 сентября 2018 года.
- ↑ Старейший детский сад в Москве планируют сохранить, построив рядом новый. stroi.mos.ru (25 декабря 2014). Дата обращения: 13 июля 2015. Архивировано 13 июля 2015 года.
- ↑ Легендарный детский сад со слониками в Щукино нашел своего владельца. moskvichmag.ru (19 марта 2025). Дата обращения: 21 марта 2025.
- ↑ В зоне риска: Детский сад № 333. The Village (14 июня 2012). Дата обращения: 28 июля 2021. Архивировано 28 июля 2021 года.
- ↑ Родина розовых слонов. «Частный корреспондент» (6 июня 2012). Дата обращения: 13 июля 2015. Архивировано 14 июля 2015 года.
- ↑ Удивительные истории улицы Маршала Василевского. «Москва. Северо-Запад» (20 мая 2021). Дата обращения: 28 июля 2021. Архивировано 28 июля 2021 года.
.jpg)