Зольник


Зольник (поддувало) — бункер, расположенный в нижней части (под колосниковой решёткой) топки паровоза, служащий для сбора золы и шлаков, образовавшихся в результате сгорания топлива. Также он должен иметь возможность периодической очистки.
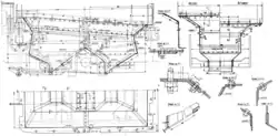
Несмотря на кажущуюся простоту конструкции, проектирование зольников являлось довольно хлопотной задачей для конструкторов. Это прежде всего связано с тем, что конструкторам паровозов приходилось решать две противоположные задачи: сделать зольник как можно ниже, чтобы была возможность поставить развитую топку и мощный котёл, и в то же время сделать зольник как можно большего объёма, при том, что размеры по ширине уже ограничены колёсными парами и боковинами рамы экипажа. Особенно это актуально на мощных паровозах с широкой топкой и с брусковой рамой, как, например, в случае с ФД, у которого ещё есть и задняя поддерживающая ось с возвращающими элементами, что ещё больше ограничивает свободное пространство. Из-за этого конструкторам приходится сужать нижнюю часть зольника, чтоб поместить её между боковинами рамы, а часто и разделять на 2-3 отделения, чтоб была возможность расположить зольник вокруг колёсных пар (как в случае на рисунке).
Литература
- Струженцов И. М. Зольник // Конструкции паровозов. — Центральное управление учебными заведениями. — М.: Государственное транспортное железнодорожное издательство, 1937. — С. 170.