Маяковская (станция метро, Москва)
| «Маяковская» | |||
|---|---|---|---|
Замоскворецкая линия | |||
| Московский метрополитен | |||
| |||
| Район | Тверской | ||
| Округ | Центральный | ||
| Дата открытия | 11 сентября 1938 года | ||
| Проектное название | «Триумфальная площадь» (1935 год), «Площадь Маяковского» (1936 год) | ||
| Тип | колонная трёхсводчатая глубокого заложения | ||
| Глубина заложения, м | 33[1] | ||
| Количество платформ | 1 | ||
| Тип платформы | островная | ||
| Форма платформы | прямая | ||
| Длина платформы, м | 156[2] | ||
| Ширина платформы, м | 14,3[2] | ||
| Архитекторы | А. Н. Душкин | ||
| Архитекторы вестибюлей | второй выход (2005 года): Н. И. Шумаков, Г. С. Мун, при участии Я. В. Мун | ||
| Художники | А. А. Дейнека | ||
| Инженеры‑конструкторы | Е. М. Гринзайд, Р. А. Шейнфайн | ||
| Станцию возвело | Шахта № 75 (руководитель И. Д. Гоциридзе) | ||
| Выход к улицам | Триумфальная площадь, Тверская, 1-я Тверская-Ямская, Садовая-Триумфальная, Большая Садовая | ||
| Наземный транспорт | А: м1, е30, 239, с369, Б, н1, н12 | ||
| Режим работы | 5:30—1:00 | ||
| Код станции | 034 | ||
| Соседние станции | Белорусская и Тверская | ||
|
|||
Схема Московского метрополитена | |||
«Маяко́вская» — станция Московского метрополитена на Замоскворецкой линии. Расположена в Тверском районе (ЦАО); названа в честь Владимира Маяковского. Открыта 11 сентября 1938 года (через 8 лет после смерти поэта) в составе участка «Площадь Свердлова» (ныне «Театральная») — «Сокол» (вторая очередь строительства). Колонная трёхсводчатая станция глубокого заложения с одной островной платформой. В 1939 году проект станции получил Гран-при на Всемирной выставке в Нью-Йорке. Станция имеет статус ценного объекта культурного наследия регионального значения[3].
История


Проект Горьковского радиуса (изначальное название Замоскворецкой линии), предполагающий строительство станции под Триумфальной площадью, появился в первой половине 1930-х годов[4]. В генеральном плане 1935 года этот проект был утверждён. Автор проекта станции архитектор С. М. Кравец, инженер Н. И. Ушаков и конструктор Р. А. Шейнфайн в качестве эксперимента решили построить колонную станцию глубокого заложения с продольными аркадами. Оформить станцию предполагалось в духе итальянского Ренессанса[5][6]. Однако этот проект был отклонён как неудачный, так как не использовал конструктивные возможности стальных колонн, применение которых было запланировано изначально[6][7]. К работе над станцией подключился архитектор А. Н. Душкин, который существенно изменил первоначальный проект. На заводе «Дирижаблестрой» в Долгопрудном для отделки станции были изготовлены ленты из нержавеющей стали[8]. Ниши свода центрального зала украсили мозаичные панно, выполненные по эскизам художника А. А. Дейнеки.
Распространено ошибочное мнение, что «Маяковская» стала первой станцией глубокого заложения, где была использована стальная колонная система[7], однако первыми станциями подобного типа были станции нью-йоркского метро[9].
Согласно генплану 1935 года, станцию предполагалось назвать «Триумфальная площадь» по её расположению под одноимённой площадью. В 1936 году в связи с переименованием площади проектное название станции было изменено на «Площадь Маяковского». В конечном итоге станции было решено дать более лаконичное название «Маяковская» в честь советского поэта Владимира Маяковского[10].
Строительством станции на заключительном этапе руководил Гоциридзе Илларион (Илья) Давидович.
Станция «Маяковская» была открыта 11 сентября 1938 года в составе участка «Сокол» — «Площадь Свердлова» (ныне «Театральная») второй очереди строительства, после ввода в эксплуатацию которого в Московском метрополитене стало 22 станции. В 1939 году проект станции «Маяковская» получил Гран-при на Всемирной выставке в Нью-Йорке[11].
Во время Великой Отечественной войны станция использовалась как бомбоубежище. 6 ноября 1941 года на «Маяковской» состоялось заседание Московского Совета депутатов трудящихся с московскими партийными и общественными организациями, приуроченное к 24-й годовщине Октябрьской революции 1917 года. В этот день здесь с докладом выступил Иосиф Сталин, причём на «Маяковскую» он приехал на поезде со стороны станции «Белорусская»[12].
В 1950-х годах на «Маяковской» были установлены гермоворота, в результате чего одно из мозаичных панно было утрачено. В конце 1950-х годов в торце станции был установлен бюст Владимира Маяковского. 4 ноября 1959 года открылся второй выход из южного (на тот момент единственного) вестибюля станции на противоположную сторону Тверской улицы. Этот выход был закрыт вместе со всем южным вестибюлем 26 сентября 2005 года[12], но после реконструкции и замены эскалаторов так и не был открыт, а открылся лишь спустя 8 лет — 25 декабря 2013 года[13]. С 1980-х годов станция имеет статус памятника архитектуры. В 2001 году станция включена в список памятников истории и культуры местного значения как один из ценнейших архитектурных объектов города Москвы[14].
С середины 2000-х годов на «Маяковской» велась реконструкция. 2 сентября 2005 года был открыт второй, северный, вестибюль станции[15], а с 26 сентября 2005 года по 15 мая 2007 года южный вестибюль был закрыт для замены эскалаторов, установленных при открытии «Маяковской» в 1938 году, и комплексной реконструкции вестибюля. 22 апреля 2010 года реконструкция станции была завершена[16], при этом многие детали оформления были заменены на новые[17]. В конце 2012 года на станции началась замена ламп на лампы с «холодной» цветовой температурой, однако после возмущения общественности в марте 2013 года было решено поставить вместо них аналогичные, но с более «тёплым» светом[18]. В ночь с 17 на 18 июля 2017 года на станции показали первую серию седьмого сезона сериала «Игра престолов»[19][20]. С 2021 года на платформе станции проводятся выездные церемонии бракосочетания. Регистрации проводятся в ночное время, чтобы не мешать пассажирам[21][22].
Техническая характеристика
Конструкция станции — колонная трёхсводчатая глубокого заложения[23] (глубина заложения — 34 метра[1]). Станция построена по проекту архитектора Алексея Душкина. Возведение станции осуществлено при участии работников 75-й шахты под руководством инженера И. Д. Гоциридзе[24].
Общая ширина платформы составляет 14,3 метра, а длина — 156 метров[2]. В конструкции станции впервые в СССР использована сталь вместо железобетона. Стальные колонны поперечного сечения 65×75 сантиметра поддерживают три станционных нефа. Колонны стоят на продольной металлической балке диаметром 1,6 метра, уложенной на бетонной плите[2]. В средней части станции сделан ряд металлических распорок-затяжек для увеличения жёсткости конструкции[2]. Высота сводов центральных арок составляет 5,3 метра; ширина пролётов — 8,9 метра[25]; шаг арок — 4,2 метра[24].
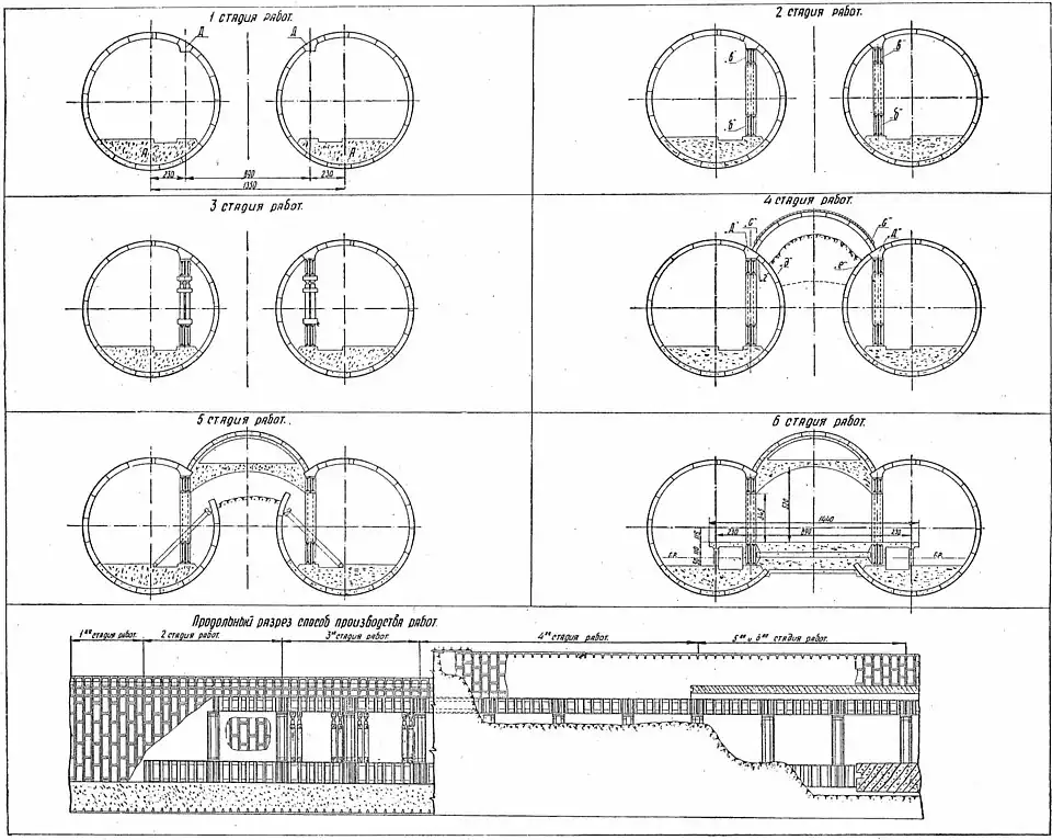
При строительстве станции сначала были пройдены боковые тоннели. Сооружение среднего свода осуществлялось при помощи проходческого щита незамкнутого контура. Полущит монтировался в торце станции и перемещался по роликам, уложенным в боковых тоннелях[26][27]. Конструкции среднего свода жёстко соединялись с тюбингами крайних тоннелей при помощи продольных металлических балок, которые опираются на колонны[2]. Боковые станционные тюбы имеют диаметр 9,5 метра и располагаются на расстоянии 13,5 метра друг от друга[2].
Ордината оси станции — ПК19+53,4. К станции прилегают перегоны: в нечётном направлении — «Маяковская» — «Белорусская»; в чётном направлении — «Маяковская» — «Тверская». Расстояние до станции «Белорусская» — 1025 метров; расстояние до станции «Тверская» — 923 метра[28] (расстояние между пикетами станций).
|
Архитектура и оформление
Станция
.jpg)

Несмотря на то, что архитектура «Маяковской» относится к «сталинской неоклассике», наличие некоторых авангардных деталей придаёт ей черты стиля «ар-деко». Архитектура станции отличается лёгкостью и изяществом[6][29]. Трёхнефный колонный зал кажется просторнее, хотя ширина платформы меньше, чем у других станций глубокого заложения[1]. Колонны и арки станции впервые в московском метро отделаны полированной рифлёной нержавеющей сталью[30]. Угловые части колонн на высоту человеческого роста декорированы уральским камнем «орлец» (родонит); к настоящему времени значительная часть камней заменена более дешёвыми аналогами[17][31]. Стальные конструкции арок обрамлены вставками из тёмно-серого мраморовидного известняка грузинского месторождения «Садахло»[1]. Свод станции покрыт белой штукатуркой.
Светильники находятся в тридцати четырёх овальных нишах свода центрального зала. Вдоль пояса каждого купола размещены 16 бра. В перспективе зала эти освещённые ниши смотрятся как люстры. Здесь также размещены вентиляционные решётки[24]. Свод станции украшен размещёнными в нишах мозаичными панно из смальты, выполненными по эскизам художника Александра Дейнеки в мастерской В. А. Фролова в Ленинграде. Тема — «Сутки советского неба». Изначально станцию украшало 35 панно. Одно, находившееся ближе к старому выходу, было впоследствии утрачено из-за строительства гермозатвора[12].
Верхняя часть путевых стен отделана бело-голубым мрамором «уфалей», нижняя — чёрно-оливковым мраморовидным известняком «давалу». Цоколи путевых стен оформлены серо-зелёным диоритом[29]. Путевые стены завершаются карнизом из нержавеющей стали. Выше просматривается тюбинговый рельеф боковых тоннелей. Своды боковых тоннелей завершают поперечные полуарки из нержавеющей стали, к концам которых подвешены двояковыпуклые светильники[1]. Прямоугольные впадины между полуарками по замыслу автора призваны зрительно облегчить свод[32]. Однако эти впадины и тюбинговые полосы архитектор С. М. Кравец относил к недостаткам станции, так как, по его мнению, они вносят зрительное беспокойство[1].
Пол станции выложен геометрическим орнаментом мрамора. Использованы три сорта камня: желтоватый «газган», красный «салиети» и оливковый «садахло»[29]. Вдоль краёв перронов станции уложен серый гранит[17].
К недостаткам оформления станции можно отнести тот факт, что мозаичные панно фактически исключены из общего архитектурного ансамбля. Чтобы их рассмотреть, необходимо встать под один из куполов и задрать голову вверх[1]. Критики также отмечали отсутствие темы Владимира Маяковского в первоначальном оформлении станции[1], бюст поэта там появился только после войны.
Темы мозаик (начиная от выхода к Триумфальной площади)[12]:

- «Знамя СССР» (утрачено)
- «Два самолёта и цветущая яблоня»
- «Прыжок в воду парня и девушки»
- «Плодовое дерево»
- «Сигнальщик»
- «Бомбардировщики днём»
- «Парашютист»
- «Спасская башня днём»
- «Комбайн»
- «Прыгун с шестом»
- «Планёры»
- «Парашютисты»
- «Прыжок лыжника»
- «Сосна»
- «Статуя девушки с веслом»
- «Самолёт»
- «Бомбардировщики ночью»
- «Дирижабль над Спасской башней ночью»
- «Парашютист ночью»
- «Биплан ночью»
- «Бомбардировщики ночью»
- «Домна»
- «Стратостат»
- «Авиамоделисты»
- «Игра в волейбол»
- «Парашютисты утром»
- «Самолёт и портик»
- «Монтажник-высотник»
- «Чайки»
- «Мать»
- «Два самолёта»
- «Опоры ЛЭП»
- «Подсолнухи»
- «Апельсины»
- «Знамя СССР»
Вестибюли

_(7157519910).jpg)

Станция имеет два подземных вестибюля[33]. Южный вестибюль был открыт вместе со станцией в 1938 году. Выход встроен в здание Концертного зала имени П. И. Чайковского на углу Тверской и Большой Садовой улиц. Авторы вестибюля — А. Н. Душкин, Я. Г. Лихтенберг и Ю. П. Афанасьев, фасад спроектировал Д. Н. Чечулин. Архитектурное оформление вестибюля относительно скромное. В отличие от других станций второй очереди, где эскалаторы доводились до верха, на «Маяковской» к ним ведут две лестницы. Согласно проекту, машинное отделение эскалаторов было вынесено из-под здания концертного зала[32]. Прямо за входом станции расположен широкий лестничный марш, который ведёт в промежуточный зал, облицованный «уфалеем» и освещённый светильниками бра[2]. От первого зала под углом 90° другая лестница ведёт к подземному эскалаторному и кассовому залу. Нижний зал облицован тёмно-красной «шрошей». Потолок зала обработан квадратными кессонами, в которых за бронзовыми решётками расположены светильники[1]. Зал соединяется со станцией трёхленточным эскалатором модели Е55Т высотой 28,7 м[34]. С 7 ноября 1959 по 25 сентября 2005 года кассовый зал имел выход ещё к одному вестибюлю станции, встроенному в дом № 30/2 по Тверской улице. 26 сентября 2005 года выход был замурован в связи с аварийным состоянием здания[35].
На Викискладе есть медиафайлы по теме Южный вестибюль Маяковской
С 26 сентября 2005 года по 15 мая 2007 года южный вестибюль станции был закрыт на замену эскалаторов и на реконструкцию. За это время полностью реконструирован наклонный ход с полной заменой эскалаторов на новые, модернизированные. В вестибюле произведена полная замена технического оснащения, построены новые кассы, установлены новые турникеты (типа УТ-2005), пожарная и охранная сигнализации, заменены все кабельные коммуникации, сантехника и вентиляция[14]. Открытие ранее замурованного выхода восточной лестницы южного вестибюля после реконструкции произошло лишь 25 декабря 2013 года. Цоколь здания был при этом полностью перестроен и заменён на современные железобетонные конструкции[36].
2 сентября 2005 года на пересечении 1-й Тверской-Ямской улицы и 1-го Тверского-Ямского переулка открыт второй (северный) выход станции[23]. Авторы — архитекторы Н. И. Шумаков и Г. С. Мун при участии Я. В. Мун, инженеры: Э. И. Ханукова, Д. Савельева и М. А. Белова. Ныне вестибюль встроен в здание. В его отделке использованы различные виды мрамора, нержавеющая сталь, пол выложен гранитом. В новом вестибюле находится бюст Владимира Маяковского работы А. П. Кибальникова, перенесённый из торца станционного зала. Египетские лотосовидные колонны кассового зала напоминают колонны метро «Кропоткинская»[37]. В оформлении вестибюля принял участие известный художник Иван Лубенников[23]. Свод кассового зала он украсил мозаиками на тему неба. Мозаичные панно окружены жёлтым фоном, похожим на тетрадный лист в клеточку, где записаны цитаты из стихотворений Владимира Маяковского[37]. Зал освещают светильники индивидуального изготовления[23]. Необычным является сообщение вестибюля со станцией: спустившись на эскалаторе, необходимо пройти по пешеходному коридору к другому эскалатору, по которому можно подняться к платформе[37]. Трёхленточные эскалаторы моделей Е55Т и Е25Т имеют высоту соответственно 37,2 и 8,8 метра[34].
На Викискладе есть медиафайлы по теме Северный вестибюль Маяковской
Станция в цифрах
Согласно статистическому исследованию 1999 года, суточный пассажиропоток станции составил 53 980 человек[38]. В марте 2002 года пассажиропоток составлял: по входу — 51 700 человек, по выходу — 44 300 человек[39]. По данным 2005 года, пассажиропоток станции составил 48 000 человек в сутки[40]. В первом квартале 2023 года пассажиропоток станции достиг[41] 62 000 человек в сутки.
Станция «Маяковская» открывается для входа пассажиров в 5 часов 30 минут и закрывается в 1 час ночи[42]. Во время проведения акции «Бессмертный полк» станция закрыта для остановки поездов.
Таблица времени прохождения первого поезда через станцию[43]:
| По чётным числам | Будние дни | Выходные дни |
|---|---|---|
| По нечётным числам | ||
| В сторону станции «Белорусская» | 05:53:00 | 05:53:00 |
| 05:53:00 | 05:53:00 | |
| В сторону станции «Тверская» | 05:38:00 | 05:38:00 |
| 05:38:00 | 05:38:00 |
Расположение

Станция «Маяковская» расположена между станциями «Белорусская» с северной стороны линии и «Тверская» — с южной. Находится на территории Тверского района Москвы на пересечении Тверской улицы и Садового кольца. Южный вестибюль имеет выход на Триумфальную площадь, к улицам Тверская, Большая Садовая и Садовая-Триумфальная. Северный вестибюль имеет выход к 1-й Тверской-Ямской, 2-й Тверской-Ямской улицам и к 1-му Тверскому-Ямскому переулку[44].
Наземный общественный транспорт
На этой станции можно пересесть на следующие маршруты городского пассажирского транспорта[45]:
Достопримечательности
Вблизи станции расположено несколько учреждений культуры. Южный вестибюль встроен в главное здание Московской филармонии, в котором расположены Концертного зала имени П. И. Чайковского, Камерный зал филармонии и её административные офисы. Рядом с южным выходом находится Московский академический театр сатиры (Триумфальная площадь, дом 2) и Театр имени Моссовета (Большая Садовая, дом 16). Неподалёку от северного выхода станции расположено центральное здание Российского музея музыки (улица Фадеева, дом 4)[46].
|

См. также
Примечания
- 1 2 3 4 5 6 7 8 9 Кравец С. М. Архитектура Московского метрополитена имени Л. М. Кагановича. — М.: Издательство Всесоюзной академии архитектуры, 1939. — С. 65—68.
- 1 2 3 4 5 6 7 8 Зеленин, Кравец, Маковский, 1941, с. 94.
- ↑ Маяковская. Комитет по культурному наследию города Москвы. Дата обращения: 23 марта 2013. Архивировано из оригинала 1 февраля 2012 года.
- ↑ Проектирование и первые очереди строительства. metro.molot.ru. Дата обращения: 16 июля 2012. Архивировано 4 сентября 2011 года.
- ↑ Вторая очередь Московского метрополитена. Журнал «Строительство Москвы». 1935 год. Дата обращения: 25 октября 2010. Архивировано 20 октября 2009 года.
- 1 2 3 Архитектура Москвы 1933—1941 гг / Автор-сост. Н. Н. Броновицкая. — М.: Искусство—XXI век, 2015. — С. 245. — 320 с. — (Памятники архитектуры Москвы). — 2500 экз. — ISBN 978-5-98051-121-0.
- 1 2 Художник и город : [Сб. ст.]. — Советский художник, 1988. — С. 132.
- ↑ Тим Скоренко. Легенда о дирижабле в метро: Дирижабль Циолковского // Популярная механика. — 2009. — Сентябрь. Архивировано 4 мая 2012 года.
- ↑ Маковский Вениамин Львович. Тоннели. Проектирование и строительство. Издательство Академии архитектуры СССР, 1947 год (недоступная ссылка)
- ↑ Зиновьев, 2011, с. 87.
- ↑ Ström, Marianne. Metro-Art In The Metro-Polis (неопр.). — Paris: Art Creation Realisation, 1998. — С. 96.
- 1 2 3 4 Зиновьев, 2011, с. 92.
- ↑ Второй вестибюль станции метро «Маяковская» открылся после семи лет реконструкции — ТАСС
- 1 2 Буклет к открытию южного вестибюля станции «Маяковская». Официальный сайт Московского метрополитена. Дата обращения: 3 февраля 2013. Архивировано из оригинала 11 февраля 2013 года.
- ↑ В столице открыт второй выход станции метро «Маяковская». Дата обращения: 26 мая 2021. Архивировано 26 мая 2021 года.
- ↑ Завершилась реконструкция станции «Маяковская» московского метро. Вести-Москва (22 апреля 2010). Дата обращения: 21 октября 2012. Архивировано из оригинала 23 октября 2012 года.
- 1 2 3 Наталья Самовер. Тьма в конце тоннеля. Архнадзор (2 февраля 2011). Дата обращения: 21 октября 2012. Архивировано из оригинала 23 октября 2012 года.
- ↑ «Маяковская» снова потеплела. vesti.ru. Дата обращения: 14 апреля 2013. Архивировано 17 апреля 2013 года.
- ↑ Ночная премьера нового сезона «Игры престолов» состоялась в московском метро. mosmetro.ru. ГУП «Московский метрополитен» (18 июля 2017). Дата обращения: 18 июля 2017. Архивировано 20 июля 2017 года.
- ↑ «Игра престолов» в московском метро: на «Маяковской» показали новый эпизод сериала. РИА Новости. 18 июля 2017. Архивировано 18 июля 2017. Дата обращения: 18 июля 2017.
- ↑ Павел КЛОКОВ. Следующая остановка - «Бракосочетание»: В московском метро впервые поженились две пары. msk.kp.ru (22 августа 2021). Дата обращения: 12 февраля 2023. Архивировано 12 февраля 2023 года.
- ↑ Названо одно из самых экзотичных мест для свадеб в Москве. Lenta.RU. Дата обращения: 12 февраля 2023. Архивировано 12 февраля 2023 года.
- 1 2 3 4 Станция «Маяковская». Официальный сайт Московского метрополитена. ГУП «Московский метрополитен». Дата обращения: 26 марта 2014. Архивировано 7 ноября 2017 года.
- 1 2 3 Зеленин, Кравец, Маковский, 1941, с. 46.
- ↑ Зеленин, Кравец, Маковский, 1941, с. 103.
- ↑ Зеленин, Кравец, Маковский, 1941, с. 105.
- ↑ Размеров B. Как сооружался средний свод «Маяковской» // «Метрострой». — 1981. — № 1. — С. 26—27.
- ↑ Схема путевого развития Московского метрополитена. trackmap.ru. Дата обращения: 6 февраля 2012. Архивировано 25 января 2012 года.
- 1 2 3 Зверев В. Метро московское. — М.: Алгоритм, 2008. — С. 101—102. — 272 с. — ISBN 978-5-9265-0580-8.
- ↑ Москва. Архитектурный путеводитель. — М., 1960. — С. 531—532. — 587 с.
- ↑ Наумов М. С., Кусый И. А. Московское метро. Путеводитель. — М.: Вокруг света, 2006. — С. 165—170. — 360 с. — ISBN 5-98652-061-0.
- 1 2 Зеленин, Кравец, Маковский, 1941, с. 49.
- ↑ План-схема станции «Маяковская». Официальный сайт Московского метрополитена. Дата обращения: 3 февраля 2013. Архивировано из оригинала 11 февраля 2013 года.
- 1 2 Основные характеристики эскалаторов (недоступная ссылка — история). Официальный сайт Московского метрополитена. Дата обращения: 22 августа 2011.
- ↑ Выход с «Маяковской» на Садово-Триумфальную будет открыт одновременно с гостиницей. Интерфакс (18 сентября 2008). Дата обращения: 3 февраля 2013. (недоступная ссылка)
- ↑ Восстановлен третий выход станции метро «Маяковская». Дата обращения: 14 января 2014. Архивировано 16 января 2014 года.
- 1 2 3 Григорий Ревзин. Подземный ренессанс. Коммерсантъ (5 сентября 2005). Дата обращения: 26 февраля 2013. Архивировано 4 марта 2016 года.
- ↑ Исследования пассажирских потоков. 18 марта 1999 года. metro.ru. Дата обращения: 4 марта 2013. Архивировано 25 января 2012 года.
- ↑ Исследования пассажирских потоков. Март 2002 года. metro.ru. Дата обращения: 4 марта 2013. Архивировано 18 января 2012 года.
- ↑ Буклет к открытию второго выхода станции «Маяковская». Официальный сайт Московского метрополитена. Дата обращения: 4 марта 2013. Архивировано из оригинала 9 марта 2013 года.
- ↑ Пассажиропоток станций Московского метро (рус.). МетроСтат. Дата обращения: 20 апреля 2024. Архивировано 20 апреля 2024 года.
- ↑ Режим работы станций и вестибюлей. Официальный сайт Московского метрополитена. Дата обращения: 4 марта 2013. Архивировано из оригинала 9 марта 2013 года.
- ↑ Расписание поездов. mosmetro.ru. ГУП «Московский метрополитен».
- ↑ Согласно информационному щиту станции
- ↑ Реестр муниципальных маршрутов регулярных перевозок пассажиров и багажа автомобильным и наземным электрическим транспортом в городе Москве. Портал открытых данных правительства Москвы. Дата обращения: 26 сентября 2020.
- ↑ В статье указаны только те достопримечательности, которые перечислены на информационных щитах станции
Литература
- Зверев В. Метро московское. — М.: Алгоритм, 2008. — 272 с. — ISBN 978-5-9265-0580-8.
- Зеленин М. А., Кравец С. М., Маковский В. Л. Архитектура Московского метрополитена. — М.: Гос. архитектурное изд-во академии архитектуры СССР, 1941.
- Зиновьев А. Н. Сталинское метро. Исторический путеводитель. — М., 2011. — 240 с. — ISBN 978-5-9903159-1-4.
- Кравец С. М. Архитектура Московского метрополитена имени Л. М. Кагановича. — М.: Изд-во Всесоюзной академии архитектуры, 1939. — 83 с.
- Наумов М. С., Кусый И. А. Московское метро. Путеводитель. — М.: Вокруг света, 2006. — 360 с. — ISBN 5-98652-061-0.
Ссылки
- Официальный сайт метрополитена. Дата обращения: 10 марта 2018.
- Сайт «Московское метро». Дата обращения: 10 марта 2018.
- Сайт «METRO.Фотоальбом». Дата обращения: 10 марта 2018.
- Сайт «Энциклопедия нашего транспорта». Дата обращения: 10 марта 2018.
- Схема станции, выходов и переходов. Дата обращения: 10 марта 2018.
- Реконструкция станции «Маяковская» (фотографии). metroblog.ru. Дата обращения: 23 марта 2013.



