Вилла Арнальди
| Вилла Арнальди | |
|---|---|
| |
| 45°25′35″ с. ш. 11°25′34″ в. д. | |
| Тип | вилла |
| Страна | |
| Местоположение | Сарего[1] |
| Архитектор | Андреа Палладио |
Вилла Арнальди (итал. Villa Arnaldi) — вилла (загородный дом) в селении Меледо, в 20 км от коммуны Сарего в области Венето, северо-восточная Италия. Построена в 1547 году по проекту выдающегося архитектора эпохи итальянского Возрождения Андреа Палладио. Однако здание осталось незавершённым.
Скромная, незавершённая вилла Арнальди может показаться необычным примером в списке вилл Палладио. Однако она представляет собой важное свидетельство творческого процесса архитектора, обычно видимого только по конечным результатам, — трансформации ранее существовавшего здания в новый архитектурный стиль. В 1547 году Винченцо Арнальди, один из самых богатых и влиятельных граждан Виченцы, поручил архитектору Андреа Палладио реструктурировать приобретённый им сельскохозяйственный комплекс XV века. Однако, когда Арнальди после долгих тяжб достиг в 1565 году судебного соглашения о перестройке старого здания, он прекратил реконструкцию и просто сдал его в аренду[2].
Серия подписанных чертежей Палладио позволяет нам проследить идеи архитектора. Он предложил преобразовать здания в целостную композицию, чтобы обозначить двор фермы и создать симметрию пространственной планировки дома. Сам дом он организовал вокруг лоджии с тремя арками и небольшими прямоугольными проёмами по сторонам (все еще сохранившимися, хотя и заблокированными), а окна обрамил своей обычной лепниной.
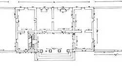
План виллы. Реконструкция 1998 г.
Сохранившаяся часть аркады
Примечания
- 1 2 archINFORM (нем.) — 1994.
- ↑ Villa Arnaldi // Mediateca, Palladio Museum. URL consultato il 26 maggio 2018 Архивная копия от 19 февраля 2024 на Wayback Machine
