E3.series
| E3.series | |
|---|---|
| |
| Тип | САПР для Электротехники, АСУТП, КИПиА |
| Разработчик | Zuken |
| Операционная система | Microsoft Windows |
| Последняя версия | 2019, Build 20.10 (11 ноября 2019) |
| Лицензия | Проприетарное ПО |
| Сайт | zuken.com |
E3.Series — программный комплекс, позволяющий решить полный цикл проектных задач в области проектирования систем электротехники, АСУТП, КИПиА — начиная от создания функциональных схем, заканчивая чертежами компоновки шкафов и панелей, а также выпуском конструкторской документации.
E3.series — третье поколение ECAD-систем, позволяющее реализовать требования, предъявляемые к современным проектам и технологиям автоматизации производственных процессов.
E3.series служит платформой для взаимодействия инженеров разных специальностей. Она включает средства работы с базой данных, графическим редактором и генератором отчетов. Разработка электрических, пневматических, гидравлических, технологических схем, а также схем автоматизации выполняется в единой среде проектирования и по единым правилам.
Система E3.series создана германской компанией CIM-Team, входящей в международный холдинг Zuken.
История развития
- 1987—2001 Компания CIM-Team (Германия) выпускает САПР DDS-schematic, работающую под MS-DOS;
- 2002 Выходит новый продукт — E3.series 2002
- 2002—2005 Каждый год выходит новая версия САПР;
- 2006 На рынке появляется Е3.series 2006. Сделан огромный рывок вперёд по сравнению с предыдущей версией системы;
- 2006 Компания CIM-Team стала частью группы компаний Zuken (Япония), известной своими мощнейшими САПР в области электроники и электротехники.
Стандартные модули

Пакет приложений E3.series состоит из отдельных модулей, построенных на едином графическом программном ядре. Такая архитектура обеспечивает совместное использование одних и тех же данных всеми модулями пакета без дополнительного конвертирования. В стандартную поставку входят такие модули

E3.Schematic
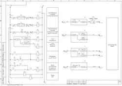
В основе платформы E3.series лежит модуль E3.schematic, предназначенный для разработки всех типов принципиальных схем. Графический редактор модуля позволяет осуществлять быстрый поиск нужного изделия в базе данных и размещать его на поле чертежа.
Модуль E3.schematic — это средство проектирования различных типов схем, начиная от технологической схемы, схемы автоматизации и заканчивая схемой внешних подключений или схемой внешних проводок, а также генерировать комплект выходной документации. Причём, перечень необходимых схем и требуемой документации определяет сам пользователь. Так как на этапе создания базы данных пользователь указывает для каждого типа схемы «своё» УГО, то при добавлении изделия на тот или иной тип схемы, система автоматически вынесет на неё соответствующий символ.
При проектировании схемы в E3.series используются два различных понятия: электрическая цепь и провод. В E3.schematic цепь — это логическая связь между контактами элементов схемы, имеющая имя и набор атрибутов (включая атрибуты передаваемого сигнала), а провод — это физический провод (марка, сечение, цвет и т. д.), идущий от одного вывода элемента схемы к другому. Такое разделение чрезвычайно удобно. Оно позволяет выводить из проекта на чертеж и в конструкторскую документацию именно те данные, которые ей соответствуют, то есть формировать практически любую документацию.
Для поиска нужного изделия в базе данных пользователь может применить функцию контекстного поиска одновременно по нескольким полям, а затем, воспользовавшись механизмом «Перенести и Разместить», выполнить перенос символа изделия из базы данных на лист схемы. После вызова изделия из базы данных вся информация о нём автоматически передается в базу данных проекта. Обширный набор функций автоматического построения линий связи между символами позволяет быстро создавать и редактировать схему. E3.schematic позволяет изображать электрическую схему с указанием графической информации о витых парах, экранировании поводов и т. п., причем вся подобная информация автоматически попадает в конструкторскую документацию. Любые изменения на листах принципиальной схемы динамически отображаются во всех генерируемых системой перечнях и в таблицах подключений клеммных колодок. Изменения в обратную сторону также выполняются динамически. Встроенные функции контроля в реальном времени позволяют избежать технических ошибок, обеспечивая тем самым выпуск корректной документации.
По принципиальной схеме автоматически получаются необходимые перечни элементов, таблица соединений для каждого шкафа, таблица подключений для каждой клеммной колодки, перечень кабелей и, отдельно, перечень жгутов, содержащий список проводов каждого жгута.
В E3.series клеммы, сборки изделий, провода, кабели, фрагменты схем и другие элементы выделены в качестве отдельных объектов со свойственными только им атрибутами и функциями. Стандартное схемотехническое решение можно сохранить в базе данных и использовать в последующих разработках.
При разработке проектов с использованием кабельных соединений актуальной является возможность обозначения и последующей специальной обработки витых пар, экранированных кабелей и т. д. Данные о том, какие провода относятся к витой паре, а какие составляют экранированный кабель, отображаются в структуре проекта и позволяют получить специальный конструкторский документ по каждому типу таких объектов.
В системе существуют две независимых друг от друга функциональности контроля целостности схем: контроль при помощи перекрестных ссылок и логический онлайн-контроль проекта. Эти две функции имеют первостепенное значение особенно при создании объемных проектов.

Е3.Cable
Модуль E3.Cable позволяет проектировать кабельные и жгутовые связи с использованием как функций работы с принципиальными схемами, так и специальных функций работы с логическими блоками — «черными ящиками». Задание взаимосвязей между блоками легко и эффективно осуществляется динамически или с использованием типовых проводов, кабелей и жгутов, описанных в базе данных изделий. Каждый объект (разъем, жгут или кабель) может быть графически представлен в виде, соответствующем типу схемы или чертежа. Используя множество видов представления объектов на различных листах проекта, E3.Cable позволяет создавать — в дополнение к блок-схемам — динамические чертежи жгутов, таблиц цепей и сигналов. После модификации любого из видов (графических изображений) объекта все другие виды модифицированного объекта автоматически изменяются.
Встроенные автоматические средства оперативного контроля предотвращают ошибки пользователя. При создании связей между разъемами блоков программа автоматически подбирает соответствующие им ответные кабельные части соединителя и динамически заменяет их при изменении типа разъема. Интеллектуальный курсор модуля E3.Cable показывает возможные коллизии, допустимые подключения, а также обеспечивает оперативную обратную связь, делая создание проекта простым и интуитивно понятным. Кабели, провода и цепи являются интеллектуальными объектами.
Каждый объект (разъём, соединительная коробка, жгут или кабель) может быть представлен в виде, соответствующем типу схемы или чертежа. После модификации любого объекта автоматически корректируются все схемы, на которых размещен редактируемый объект. В дополнение к этому модуль E3.Cable предоставляет пользователю возможность создавать чертежи жгутов, таблиц цепей и сигналов.
Множество автоматических оперативных средств контроля предотвращает ошибки пользователя. При подключении кабеля к блочному разъему E3.Cable автоматически подбирает соответствующие им ответные части и динамически заменяет их при изменении типа разъема. Интеллектуальный курсор модуля E3.Cable показывает возможные коллизии, допустимые подключения, а также обеспечивает оперативную обратную связь. Кабели, провода и цепи являются интеллектуальными объектами.



Е3.Panel
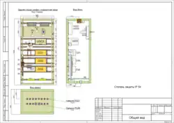
Основная задача модуля E3.Panel — предоставить проектировщику быстрый и точный инструмент по созданию необходимого комплекта конструкторской документации. Чтобы скомпоновать, например, силовой шкаф, достаточно вызвать подходящий конструкцию как изделие из базы данных и выполнять компоновочный чертеж на развертке шкафа. Перед началом компоновки шкафа модуль E3.Panel рассматривает атрибуты всех изделий из проекта, выбирает только те изделия, которые предполагается разместить в этом шкафу, и помещает их в специальный раздел проекта «Неразмещенные изделия компоновки». После того, как в процессе компоновки изделие размещается в шкафу, оно автоматически переносится в раздел «Размещенные изделия компоновки».
Модуль E3.Panel автоматически определяет допустимость установки изделия на монтажной рейке заданного типа. В процессе компоновки система автоматически подсвечивает на чертеже все рейки и изделия, на которых допускается установка выбранного изделия. При этом процесс установки изделия на рейку выполняется простым переносом конструктивного образа изделия из проекта. Размещение клемм на монтажной рейке выполняется путём выбора всей клеммной колодки и автоматического размещения клемм на рейке в пакетном режиме.
При описании изделий и шкафов в базе данных пользователь может задать допустимые области монтажа, а также ограничения по высоте, чтобы, например, обеспечить доступ для подключения проводов или жил жгутов и кабелей к контактам изделий или исключить взаимное влияние электромагнитных полей расположенных рядом изделий.
Поскольку в базе данных каждое изделие описано и схемным, и конструктивным символом (моделью), то, создав принципиальную схему, проектировщик может перейти к созданию чертежа компоновки, где связи схемных элементов превращаются в «резиновые нити», соединяющие конструктивные элементы.
Для установленных в шкафах изделий можно включить режим отображения электрических связей, определенных на принципиальной схеме. При перемещении изделия в устройстве компоновки с одного места на другое все электрические связи «тянутся» за изделием в виде «резиновых нитей».
Это позволяет пользователю, во-первых, наглядно оценить трассу прокладки и длину проводов между изделиями в шкафу, а, во-вторых, помогает оптимально расставить изделия с целью минимизации длины проводов.
После установки изделий в шкафу пользователь может разместить короба (кабельные каналы), в которые будут укладываться провода и кабели. Модуль E3.Panel содержит в своем составе функциональность автоматической (или, по желанию, полуавтоматической) трассировки проводов в коробах на основании таблицы цепей, полученной из принципиальной схемы. (Модуль E3.Panel с активной функциональностью автотрассировки в комплектах поставки программы E3.series именуется модулем E3.Panel+) Одним из важных атрибутов коробов является заданная пользователем степень их заполнения в процентах. Модуль E3.Panel автоматически рассчитывает уровень заполнения коробов в каждый момент времени и запрещает прокладку проводов в тех коробах, для которых достигнут предельный уровень заполнения. (в качестве предельного принят 70%-й уровень заполнения коробов.) При этом функциональность автотрассировки рассчитывает минимальную длину проводов, несмотря на возможное присутствие циклических (шлейфовых) цепей. Система также рассчитывает физическую длину провода с учётом высотных отметок контактов изделий.
На этапе создании принципиальной схемы можно использовать традиционные понятия «Устройство» и «Место» с целью автоматического назначения группе изделий конкретного шкафа или отдельной монтажной плоскости. В этом случае в начале работ с чертежом компоновки можно отфильтровать необходимые изделия и работать только с ними.
Дополнительные модули
- E3.Instrumentation — модуль для САПР E3.Series, устанавливаемый «поверх» базового модуля E3.Cable. Разработан компанией Поинт совместно с Zuken и ориентирован на пользователей, работающих по ГОСТ, ЕСКД (в том числе ГОСТ 21.408-2013 «Система проектной документации для строительства. Правила выполнения рабочей документации автоматизации технологических процессов»). Основная задача E3.Instrumentation — дополнительная автоматизация проектных работ связанных с разработкой документаций по автоматизации производства (марки АК, АТХ, АОВ, АПТ, АТМ и пр.).
- E3.Hub — модуль предназначен для разработки и управления электротехнической документацией. Программный комплекс Е3.Hub позволяет объединяющий подпроекты в единый согласованный проект. Объединяемые проекты могут быть как многопользовательскими, так и однопользовательскими.
- E3.Formboard — модуль разрабатывался для создания необходимых для производства жгутов и кабелей плазов (чертежей раскладок) жгутов. E3.Formboard позволяет получать чертеж в масштабе 1:1, который можно использовать для создания жгута и корректировки отдельных его ветвей (сегментов).
- E3.Redliner — «Красный карандаш». Модуль для руководства и нормоконтроля. Позволяет наносить пометки в проект E3.Series (тексты и графические примитивы).
- E3.ZPA — Zuken PDM Adapter. Набор приложений для интеграции с SAP/R3 Dassault Smarteam, Dassault Enterprise PDM, Siemens PLM Teamcenter, Oracle Agile, Contact CIM Database, Intermech Search.
- E3.3DRoutingBridge — модуль интеграции с Autodesk Inventor, Dassault Systеmes CATIA V5, Dassault Systеmes SolidWorks, PTC Creo Parametric (formerly Pro/Engineer), Siemens NX, Siemens SolidEdge, NX I-deas.
- E3.RevisionManagement — модуль для сравнения версий проекта. Позволяет получать отчет о сравнении в графическом и текстовом виде. Используется для внесения «измов» в проект с автоматическим заполнением соответствующих полей в основных надписях чертежей.
- E3.Logic — Создание принципиальных схем электронных устройств; подготовка комплекта технической документации.
- E3.Viewer — Свободно распространяемый автономный модуль для просмотра проектов Е3.series (без необходимости установки полнофункциональной версии Е3.series). Работает как с локальными проектами, так и с многопользовательскими. Позволяет проекты выводить на печать.
Многопользовательский режим
- Группа пользователей работает одновременно над одним проектом
- Возможности администрирования проекта
- Архитектура «Клиент — Сервер»
- Сервер имеет прямой доступ к проекту
- Клиент связывается с проектом через сервер
- Сервер работает с базой данных
- Коммуникация через TCP/IP порты
- Клиент может работать в одном из режимов: «однопользовательский» или «многопользовательский»
Ссылки
- Official Zuken Website in English
- e3series.ru — официальный сайт E3.series в России
- Андрей Спиридонов. Новые возможности электротехнического проектирования в среде E3.series. sapr.ru (1 августа 2006). Дата обращения: 1 августа 2006.
- Денис Семенов. Как это было: внедрение E3.series в группе КИПиА Проектного Управления ООО «ПО «Киришинефтеоргсинтез». sapr.ru (1 декабря 2006). Дата обращения: 1 декабря 2006.
- Андрей Спиридонов. Вертикальные решения для электротехнического проектирования на основе системы E3.series. sapr.ru (1 марта 2007). Дата обращения: 1 марта 2007.
- Андрей Спиридонов. Вертикальное решение для разработки проектов АСУТП на основе системы E3.series. sapr.ru (1 сентября 2007). Дата обращения: 1 сентября 2007.
- Денис Семенов. Проектирование АСУ в E3.series. sapr.ru (1 сентября 2008). Дата обращения: 1 сентября 2008.
- Александр Соколов, Руслан Давлетшин. Совместное проектирование электромеханических изделий в Autodesk Inventor и E3.Series. sapr.ru (1 октября 2013). Дата обращения: 1 октября 2013.
- Александр Акимов, Александр Кононов. Сквозная система проектирования электрифицированных систем в аэрокосмической отрасли на примере связки E3.series и NX. sapr.ru (1 апреля 2011). Дата обращения: 1 апреля 2011.
