1-528КП-40
| 1-528КП-40 | |
|---|---|
| |
| Местонахождение |
|
| Строительство | 1962 — 1970-е |
| Использование | Жилой дом |
| Высота | |
| Крыша | около 35 м |
| Верхний этаж | около 30 м |
| Технические параметры | |
| Количество этажей | 9 |
| Количество лифтов | 1 |
| Архитектор | «Ленпроект»: Н. Н. Надёжин и В. М. Фромзель |
1-528КП-40 (неофициальное название «точка Надёжина») — советская типовая серия кирпичных жилых домов-«точек», возводимых с 1962 по 1970-е годы в Ленинграде, а также некоторых других городах. Авторы проекта — известные советские архитекторы Н. Н. Надёжин и В. М. Фромзель. Первоначально индивидуальный проект был высоко оценён в профессиональной среде и вскоре был утверждён как типовой. Дом был отмечен публикациями в престижных зарубежных изданиях L'Architecture d'aujourd'hui (Франция) и The Architectural Review (Великобритания) в 1964 и 1965 годах[1].
История создания
В 1961 году в институте «Ленпроект» в мастерской № 3 О. И. Гурьева архитектором Н. Н. Надёжиным под руководством мастера сталинского неоклассицизма В. М. Фромзеля был разработан проект девятиэтажного кирпичного «точечного» жилого дома на 45 квартир[2][1].
Родилась идея этого дома так. Сидел я на каком-то совещании в Союзе архитекторов, вертел в руках пустую коробку из-под папирос «Казбек», на которой джигит скачет верхом, если помните. Раскрыл коробочку, стал рисовать.
— В. М. Фромзель, Санкт-Петербургские ведомости № 22 (2412), 3 февраля 2001[3]
Примечательно, что изначально индивидуальный проект был создан по заказу одного из первых в СССР жилищно-строительных кооперативов «Маяк» в Выборгском районе Ленинграда. При проектировании учитывались решения собрания будущих жильцов. Первые здания были построены в 1962 году по адресам Дрезденская улица, 26[4] и проспект Тореза, 90[2][5].
Проект стал событием в архитектурно-строительной практике Ленинграда. В отличие от распространённой в то время типовой безликой крупнопанельной застройки «хрущёвками», новые здания имели хоть и простой, но своеобразный пластичный облик: чередование разноцветного кирпича в фасадах, «перебивка» этажности, запоминающееся соотношение глухих стен, лоджий, проёмов[2][1].
Квартиры в этих домах имели улучшенную для того времени планировку: более просторные кухни и комнаты, отсутствие комнат «вагонных» пропорций, комнаты с окнами на две стороны, просторные «двушки», вместо тесных «трёшек». Небольшая площадь застройки здания (около 300 м²) позволяла легко «внедрять» его в самые разные участки и кварталы, в отличие от гораздо менее манёвренных с точки зрения градостроительства протяжённых панельных домов. Кроме того, эти девятиэтажки были относительно недороги в производстве. Фактически этот проект стал одной из первых ласточек в преодолении «хрущёвщины» в массовом строительстве, как в плане внешнего «украшательства», так и стандартов планировки и метража[2][1][6][7][8][9].
Эти особенности сделали проект очень популярным не только среди профессионалов-архитекторов, но и простых горожан. Его рекомендовали для повторного использования, а вскоре утвердили как типовой за номером 1-528КП-40. Проект стал общесоюзным и часто применялся при кооперативном строительстве. Всего в Ленинграде по нему было построено более трёхсот домов[2][1]. Как заметили критики: «Многократно реализованный дом остаётся образцом достижения выразительного результата самыми скупыми средствами»[10]. По утверждению профессора Ю. И. Курбатова, надёжинский проект «спас» застройку новых кварталов Ленинграда от «угрюмой монотонности»[11].
Типовой дом-башня получил своё неофициальное название в честь автора — «точка Надёжина», став единственным таким примером в Ленинграде. Проект был отмечен публикациями в престижных зарубежных изданиях L'Architecture d'aujourd'hui (Франция) и The Architectural Review (Великобритания) в 1964 и 1965 годах, а архитектор Н. Н. Надёжин обрёл всесоюзную известность[2][1][7].
Описание



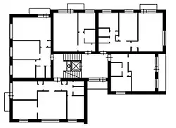
Серия представляет собой девятиэтажные «точечные» кирпичные здания на 45 квартир. Площадь застройки — около 300 м². Внешние стены из неоштукатуренного кирпича, в большинстве случаев — силикатного (серого цвета) с красными вставками из керамического. Высота потолков 2,5-2,7 м. Перекрытия выполнены из многопустотных настилов со стяжкой, имеющей войлочную подоснову[7][8][9].
Квартиры 1,2,3-комнатные, на каждом этаже расположено по 5 квартир (1-1-2-2-3-комнаты, общая площадь — 33, 34, 47, 50 и 57 м² соответственно), причём две из них находятся на пол-этажа выше, чем три остальные. Квартиры разделены между собой капитальными стенами, внутри квартир стены не несущие. Комнаты достаточно просторные, отсутствуют «коридорные» типы. В однокомнатных квартирах санузел совмещённый, в остальных — раздельный. Жилые комнаты — 10-20 м², кухня — от 6 до 8 м². Почти все квартиры окнами выходят на две стороны и имеют балкон или лоджию[7][8][9].
Дома оснащены пассажирским лифтом (усечённых габаритов, грузоподъёмность 320 кг) и мусоропроводом, которые идут в центре лестничной площадки и не граничат ни с одной из квартир, благодаря чему дом обладает хорошей звукоизоляцией. Три квартиры выходят на основную лестничную площадку, имеющую просторную лоджию[7][8][9].
В Ленинграде здания этой серии массово строились в 1960-х, чаще всего — вдоль красных линий кварталов 5-этажных «хрущёвок», реже — образуя собственные ансамбли, например, вокруг Серебряного пруда в Выборгском районе[2][1].
Распространение
Большая часть этих домов построена в Санкт-Петербурге и Ленинградской области (более 300[2][1]), а также в других городах, таких как: Минск, Великий Новгород, Вологда, Петрозаводск, Кондопога, Смоленск, Ульяновск, Томск, Омск, Хабаровск, Комсомольск-на-Амуре. В том числе в закрытых городках, таких как Зеленогорск,Железногорск, Димитровград, Снежинск, Обнинск, Протвино, Новоуральск, Озёрск, Полярные Зори, Кирово-Чепецк[12]. Кроме того, 10 домов было построено в городах Латвии: Айзкраукле, Даугавпилс и Саласпилс[13].
Модификации
![]() | ![]() |
Известно о существовании нескольких серийных модификаций домов серии 1-528КП-40.
Первая, более ранняя, «классическая», строилась почти исключительно в Ленинграде и его пригородах. Вне границ города на Неве она также встречается в Выборге и Великом Новгороде[14].
Впоследствии при адаптации проекта для Соснового Бора была разработана так называемая «точечная серийная конфигурация на 45 квартир для пригородов и закрытых городков». Этого требовали новые правила пожарной безопасности: в структуру дома внесли дополнительную эвакуационную лестницу. Здания данной модификации отличаются дополнительными балконами и небольшим выступом на заднем фасаде, а иногда и материалом внешней отделки. Этот вариант встречается преимущественно в Ленинградской области и других регионах России, а в Санкт-Петербурге он есть, например, в Красном Селе[1][15].
Также существуют здания с различными более или менее значительными конструктивными особенностями. Например, дома 74 и 104к1 по проспекту Тореза имеют небольшую одноэтажную пристройку, дом 39 по Светлановскому проспекту вплотную пристроен к соседнему дому серии 1-528КП-41/42. Здания на проспекте Металлистов, 113 и Кондратьевский проспект, 53 значительно изменены: имеют по 4 квартире на этаже, все на одном уровне, всего — 32, 1 этаж нежилой. Здания на Колпинском шоссе, 12 и 47 дополнены большими пристроенными лоджиями. В Гатчине на улице академика Константинова, 5 и 7к1 дома имеют большую одноэтажную пристройку с нежилыми помещениями и частично нежилой первый этаж. В домах по адресу Железноводская улица, 31, 33, 35, 44 и 48 в трёхкомнатной квартире одно окно перенесено с лицевого фасада на боковой.
Примечания
- 1 2 3 4 5 6 7 8 9 Лавров, 2008.
- 1 2 3 4 5 6 7 8 Надёжина, 2014, с. 39-41, 150.
- 1 2 Поздняков, 2001.
- ↑ Комитет по информатизации и связи Правительства Санкт-Петербурга. Портал «Наш Санкт-Петербург». Дом по адресу г. Санкт-Петербург, Дрезденская улица, дом 26. Технико-экономический паспорт многоквартирного дома. Дата обращения: 27 июня 2016. Архивировано 12 августа 2016 года.
- ↑ Комитет по информатизации и связи Правительства Санкт-Петербурга. Портал «Наш Санкт-Петербург». Дом по адресу г. Санкт-Петербург, проспект Тореза, дом 90. Технико-экономический паспорт многоквартирного дома. Дата обращения: 27 июня 2016. Архивировано 12 августа 2016 года.
- 1 2 Мярс, 2010, с. 55.
- 1 2 3 4 5 Урбан, 2014.
- 1 2 3 4 Урбан, 2013.
- 1 2 3 4 Харитонов, 2014.
- ↑ Надёжина, 2014, с. 41.
- ↑ Надёжина, 2014, с. 150.
- ↑ Минск: улица Калиновского, 23А, Логойский тракт, 30 корп. 4. Великий Новгород: набережная Александра Невского, 25, 27, 29. Вологда: улица Некрасова, 63, 65, 67, 69. Обнинск: Звёздная улица, 5, 7, 9, 11, улица Комарова, 7, 11, проспект Ленина, 92, 108, 120, 124, улица Энгельса, 15, 17, 19. Кирово-Чепецк: улица Алексея Некрасова, 7, 17, 19, Вятская набережная, 1, 3, 10, 11, проспект Кирова, 11, 13, 15, улица Ленина, 12, 12А, 64 корп. 4, 66 корп. 4, проспект Мира, 43Д, 43Е, Первомайская улица, 3, 5, 7, 9, улица Якова Терещенко, 7, 9, 11, 17, 19, 21. Зеленогорск: улица Бортникова 32, 38, 42. Железногорск: проспект Курчатова, 18, 30, 38. Полярные Зори: Нивский проспект, 1, 3, 5, 15, 16. Кондопога: улица Бумажников, 14 корп.1, 2, 3, 4. Петрозаводск: Загородная улица, 26, улица Маршала Мерецкова, 21, 28. Новоуральск: Комсомольский проспект, 13, 17, 21, улица Фурманова, 33, Берёзовая аллея, 7. Смоленск: улица Октябрьской Революции, 24, 26, 28. Комсомольск-на-Амуре: Интернациональный проспект, 2 корп. 2, 6 корп. 1 и 2, 8, 35, 37, 39. Хабаровск: улица Гоголя, 5, 7. Озёрск: улица Семёнова, 11, 19, 21, 25. Димитровград: проспект Ленина, 9, 11, 13, 17, 22, 24, 26, 28, 40, 42, 44. Ульяновск: улица Аблукова, 59/7, улица Северный Венец, 14, 16. Снежинск: улица Ленина, 37.
- ↑ Айзкраукле: Draudzības krastmala, 1, 2, 3 и 4. Даугавпилс: Imantas iela, 4, Krišjāņa Valdemāra iela, 5, Smilšu iela, 99. Саласпилс: Maskavas iela, 3 и 5, Skolas iela, 1.
- ↑ Выборг: Батарейная улица, 2, 4, 6, улица Кривоносова, 17, улица Куйбышева, 17, Первомайская улица, 13, Приморское шоссе, 4, 6, 8, 10 улица Репина, 7. Великий Новгород: набережная Александра Невского, 25, 27, 29.
- ↑ Красное село: Гатчинское шоссе, 7 корп. 2, Кингисеппское шоссе, 10 корп. 3, Красногородская улица, 19 корп. 3, проспект Ленина, 73, улица Лермонтова, 9, Нарвская улица, 10, Улица Освобождения, 22, 26, 30, 34
Литература
- Надёжина И. Г.. Архитектор Н. Н. Надёжин. Проекты, постройки, живопись, рисунок / кор. И. П. Дубровская. — СПб.: Пропилеи, 2014. — 164 с. — 200 экз.
- Лавров Л. П., Курбатов Ю. И.. Уроки тактичности и корректности архитектора Н. Н. Надежина (1929-2005) // Ардис : журнал. — СПб., 2008. — № 4(40).
- Мярс Г. И.. Слово о хорошем человеке // Мастер`ОК : журнал. — СПб., 2010. — Февраль (№ 1(3)). — С. 55.
- Александр Поздняков. Архитекторы сталинизма // Санкт-Петербургские Ведомости : газета. — 2001. — 3 февраль (№ 22 (2412)).
- Филипп Урбан. «Советский кирпич»: от оттепели до застоя // Бюллетень-Недвижимость : газета. — 2014. — 18 февраля.
- Филипп Урбан. Кирпичные дома в период хрущёвок и брежневок // Бюллетень-Недвижимость : газета. — 2013. — 11 февраль.
- Леонид Харитонов. Периодизация типовой жилой застройки в Купчине с 1950-х гг. по н. в.. — 2014.
- Каменский В.А., Наумов А.И.. Ленинград. Градостроительные проблемы развития. — Ленинград: Стройиздат, 1973. — 360 с. — 20 000 экз.
Ссылки
- ДомоСтрой № 7 (серия 1-528 КП-40). Телеканал «ТКТ-TV». 13 октября 2015 года.


